M3M Route 65 Sector 65 Gurgaon
M3M Route 65 Offer a Commercial Retail Shops, Hyper Market, F&B Food court and Gaming Zone in Sector 65 Gurgaon
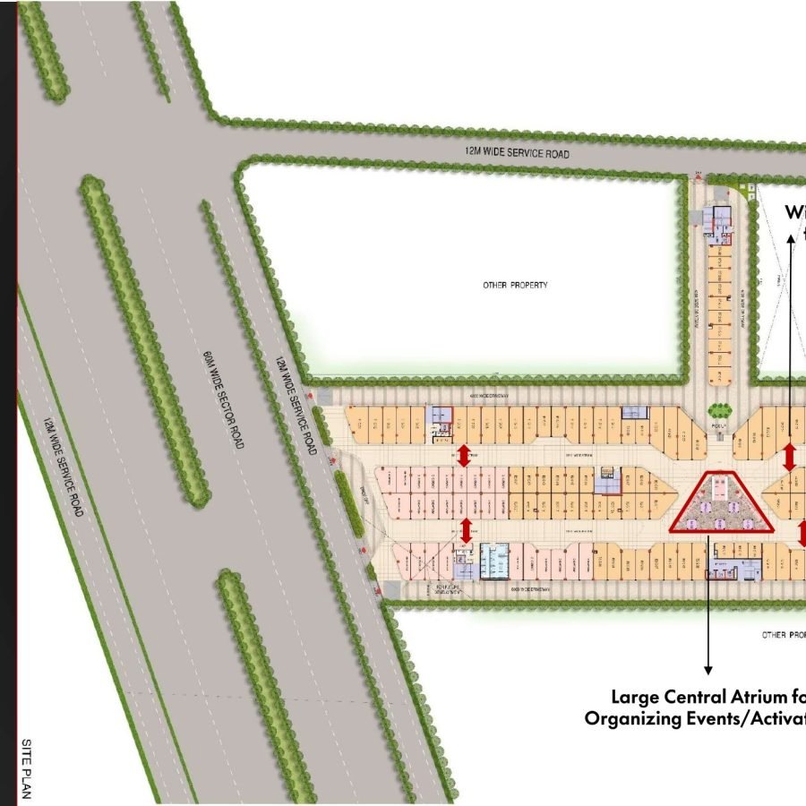
M3M Route 65 – the convergence point for famous and fashionable food, shopping, lifestyle and entertainment from around the world. It is located in Sector 65 with a spread of built-up area of approx. 4 acres, serving as the perfect blend of retail shop, food courts & open dining area on upper ground floor. It has a modern approach and glass fronts which offers a unique shopping experience. Conditioned piazzas, colorful courtyards, and the central atrium all work together to define a rich world inside the building. M3M Route 652Located amidst premier lifestyles and global workspaces, M3M Route 65 has an interplay of transition & liveliness.
4-Acre Development with Dual-Side Access
High-Street Retail with Open-Air Dining
Very near to Premium Schools and Corporates
Several Anchor Stores for All of your Shopping Needs.
Stand and follow by M3M Grugaon one of the leading developers in Gurugram presents M3M Route 65 offering finest and most groundbreaking commercial spaces. The project contains such a commercial program as has never before known by the city. M3M Route 65 was designed to be a masterpiece with purpose of
to provide a different place where users can experience the secure mix of retail, office space, relaxation and shopping. This commercial project features a full-service food court and stores of the future. M3M has selected a fashionable place of business where dreams actually eclipse the reality and the architecture look to be in tune with this idea. simple layout in modern architectural design. In most parts of the city, every square footage of this project would have been developed so smart with design that not only are you making 4 acres of land amazingly unique. M3M Route 65 Sector 65 is the city’s vibrant pulse, with well connected location and high street retail shops. It is the story of young peoples’ determination and a young person’s dreams. Gurugram users will discover a new age entertainment space and lifestyle destination at this place. M3M Commercial Project in Gurgaon-unlimited fun, always ready. something to accomplish. Gaming zone, catch-up time with your friends, a movie at the PVR multiplex and much more. One such development is the entertainment zone of the soon to be launched M3M Route 65 commercial project will be designed with contemporary global aesthetic and personal experiences. They are offered a plenty of entertainment, relaxation, shopping and hospitality venues convenient indoor and outdoor facilities allow users all kinds of entertainment options.
M3M Route 65 Sector 65 Gurgaon is proposed to be an amusement spot where the everyday life of frustrated shoppers comes into the ecstatic contact willing to buy. M3M caters to the desires of the people as they venture a place that although being commercial, still provides all under one roof be it spas, dining options for family, food courts etc. Families are on the ATTERY: the potential buyers will have to shop around first and not get deceived by false promises. area will surely explore M3M Route 65 Gurugram as a place to shop and entertain themselves as it is friendly, atmospheric.




































